| Sito n. | Descrizione | Località | file PDF |
| 132 | Parco Tecnologico Ambientale | Castellavazzo | |
| Architettura Contemporanea (AC) | (vedi scheda n. 28) | ||
![]() |
![]() |
![]() |
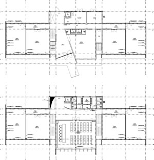
| Planimetria. Fonte: Arch. E. Padovan – R. Della Giacoma | Piante piano terra e piano primo. . Fonte: Arch. E. Padovan – R. Della Giacoma | Veduta d’assieme. Foto A. Guadagnin |
![]() |
![]() |
![]() |
| Il Parco tecnologico ripreso dalla sponda opposta del Piave. Foto A. Guadagnin | Il corpo centrale con l’ingresso. Foto A. Guadagnin | Vista dell’edificio sull’asse del viale di ingresso. Foto A. Guadagnin |
- Dati identificativi
- Struttura edilizia
- Architettura interna
- Stato di conservazione
- Riferimenti
- Descrizione
Nome dell’opera/manufatto |
Parco Tecnologico Ambientale |
Tipo edilizio: |
Edificio polifunzionale (sede di laboratori analisi, uffici, sala pluriuso) |
Localizzazione (Comune, Prov): |
Castellavazzo – Località Roa, Via Malcom, 5, BL, Italia |
Coordinate GIS: |
Coordinate (tipologia Gauss Boaga): X: 1754807 - Y: 5130505 |
Anno di realizzazione: |
2007-08 |
Progettista: |
Arch. Roberto Della Giacoma e Arch. Ezio Padovan |
Committenza: |
Comune di Castellavazzo |
Destinazione originaria: |
Parco Tecnologico (sede di laboratori analisi, uffici, sala pluriuso) |
Destinazione attuale: |
Parco Tecnologico (sede di laboratori analisi, uffici, sala pluriuso) |
Accessibilità: |
Sulla SS 51, in direzione Longarone – Ospitale di Cadore, si giunge in comune di Castellavazzo; si procede per la strada principale, finché in prossimità di una curva, sulla destra si trovano segnalazioni per Codissago. Si percorre la strada che abbastanza tortuosa scende verso gli argini del fiume Piave e dopo 500metri si possono notare la copertura e il retro dell’edificio, che è costruito su un’area pianeggiante a ridosso della sede stradale. |
Contatto per la visita: |
L’area esterna del piazzale è libera |
Pianta |
Il Parco Tecnologico Ambientale è organizzato su tre nuclei. |
Tecnica Muraria |
Struttura mista, realizzata mediante setti in c.a. e pilastri in acciaio |
Solai |
In c.a. |
Coperture |
Ciascun corpo presenta copertura monofalda rivestita in lamiera piana graffata con pendenza 20% |
Pavimenti |
Pavimento in listoni di legno dussiè all’ingresso e nell’area della sala pluriuso (corpo centrale). Pavimento interno sopraelevato con pannelli da 60x60cm in conglomerato cementizio armato pressato con finitura in inerti di marmo levigati (alla veneziana) sulle zone adibite ad ufficio (corpi laterali). |
Scale |
In c.a. rivestite in legno dussiè |
Arredi interni |
- |
Decorazioni |
Non presenti |
Stato attuale: |
L’edificio è di recente costruzione |
Restauri e compromissioni |
Non avvenuti |
Categoria/parole chiave |
Architettura in prossimità dell’acqua |
Fonti: |
- |
Archivi: |
Non necessari per approfondire la conoscenza sul manufatto |
Bibliografia: |
Relazione Tecnica fornita dal progettista Arch. Ezio Padovan |
Descrizione dell’opera/ |
Il Parco Tecnologico Ambientale architettonicamente rappresenta due concetti base delle funzioni contenute, il legame con il territorio-ambiente con l’utilizzo del legno e di strutture leggere racchiuse in volumi tecnologici, e l’innovazione nell’uso e nelle forme, carattere fondante della ricerca. |
Descrizione del contesto |
L’edificio è realizzato su un’area pianeggiante, in prossimità dell’alveo del Piave. Non è direttamente posto sulle sponde dell’acqua, ma i tre corpi che lo compongono sono tutti proiettati verso la vista dell’acqua. |
Descrizione altre attrattive |
A Castellavazzo si può visitare il museo degli scalpellini (www.pietraescalpellini.it), aperto tutte le domeniche (orario 14:00 – 18:00), testimonianza di un mestiere antico su cui si basava nel passato l’economia dell’intero paese (erano aperte ben 14 cave, a fronte dell’unica operativa adesso): non c’è famiglia di Castellavazzo che non annoveri nella propria genealogia qualche tagliapietra o scalpellino. |
Commenti/note |
Il Parco Tecnologico Ambientale rappresenta una significativa esperienza a livello regionale, di un parco scientifico specializzato sul settore ambientale. Nasce con l’obiettivo di valorizzare la cultura d’impresa diffusa nell’area veneta, con la vocazione ambientale di un’area territoriale che ha nelle risorse ambientali lo snodo per una diversificazione della sua struttura produttiva. Il progetto di Parco scientifico è strutturato per accogliere aziende specializzate ed enti di ricerca attivi nei settori delle tecnologie ambientali. |
Compilatore della scheda |
Arianna Guadagnin |






